StarTech
Lawn Royalty
- Joined
- Feb 19, 2020
- Threads
- 116
- Messages
- 12,625
That's okay as I will DL a copy of the TM2259 for my shop too since I don't have that copy here. GFP hasn't responded to me yet.
Update
And I just looked over that TM2259 and it appears to be the correct manual. Tnx for the TM PN.
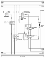
Partial seat switch circuit diagram. Boy I haven't seen a PNP transistor used in a long time.

Remove the module and temporary jumper green wires 640 and 641 together. This will bypass the time delay module for test purposes.
	
		
			
		
		
	
			
			Update
And I just looked over that TM2259 and it appears to be the correct manual. Tnx for the TM PN.
Partial seat switch circuit diagram. Boy I haven't seen a PNP transistor used in a long time.

Remove the module and temporary jumper green wires 640 and 641 together. This will bypass the time delay module for test purposes.
 
				 
 
		